- マンション
マンションハイマート浦安
| 販売価格 | 所在地/交通 | 専有面積 | 間取り |
|---|---|---|---|
| 成約御礼 | 浦安市当代島2丁目 東京メトロ東西線浦安駅 徒歩4分 |
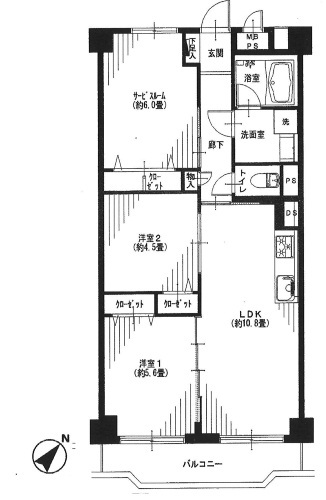
60.5m² | 2SLDK |
ネットで来店予約できる日程
物件の担当者のおすすめポイント
増税前の今がチャンス!
人気の東西線「浦安駅」で通学に便利です。
南向きのバルコニーはお布団もお洗濯物もカラッと乾きますね☆
うれしい犬猫2頭まで飼育可ですよ♪
明るく風通しも良い、心地良い新生活をはじめませんか。室内はリノベーション済なのでそのままお住まいいただけます。☆お客様が満足できる物件が見つかるまで、全力でサポートさせて頂きます☆
住宅ローンのご相談も承ります
月々のお支払いは0円になります
※返済金額はあくまでも目安の数値となります。詳細は弊社までお問い合わせ下さい。
※住宅購入では、物件資金とは別に諸経費が必要です。(火災保険、税金、ローン費用等)
物件概要
| 価格 | 成約御礼 | 月々の返済例 | |
|---|---|---|---|
| 物件名 | ハイマート浦安 | ||
| 所在 | 浦安市当代島2丁目 | ||
| 交通 | 東京メトロ東西線「浦安」駅徒歩4分 | ||
| 物件番号 | 506818965001 | 物件種別 | マンション |
| 総戸数 | 全54戸 | 引渡時期 | |
| 専有面積 | 60.5m² | バルコニー面積 | 6.06m²/南東側 |
| 専用庭面積 | テラス面積 | ||
| 建物構造 | 鉄筋コンクリート造7階建て | 所在階 | 3階部分 |
| 築年月 | 1978年11月築 | 新築・中古 | 中古 |
| 間取り | 2SLDK | 間取り詳細 | |
| 現況 | 空家 | 土地権利 | 所有権 |
| 用途地域1/2 | 近隣商業地域/第一種住居地域 | 借地料 | |
| 駐車場 | あり | 駐車場料金 | 13,000円 |
| 町会費 | インターネット使用料 | ||
| 管理形態 | 全部委託 | 管理人 | 日勤 |
| 管理会社 | ユニオン・シティサービス | 施工会社 | 淺沼組東京本社 |
| 管理費 | 6,700円/月 | 修繕積立金 | 16,370円/月 |
| その他費用 | 取引態様 | ||
| 内装リフォーム年月 | 2018年12月 | 外装リフォーム年月 | |
| 小学校区 | 中学校区 | ||
| 設備 | 都市ガス 東京電力 公営水道 排水(下水) | ||
| 法令上の制限 | |||
| 備考 |
国土法届出:不要 |
||
| 設備 |
駅徒歩5分以内/都市近郊/平坦地/閑静な住宅地/追い焚き風呂/浴室乾燥機/陽当り良好/南向き/ペット可/駐車場あり/2階以上/コンビニ徒歩5分以内/スーパーが近い/収納充実/全居室収納/ファミリータイプ/リノベーション/南面バルコニー/シャワー付洗面台/温水洗浄便座/BSアンテナ/コンロ3口以上/システムキッチン/人感センサーライト/エレベーター |
||
ネットで来店予約できる日程
近くにもこれだけ物件があります。
| 種別を指定する |
|
|
|---|---|---|
千葉県浦安市の街情報
浦安市は千葉県北西部にある市で、東京ディズニーリゾートがあることで全国的に知られています。
また、近年では財政力指数において常に上位に位置し、非常に豊かな市としても有名です。
東京都心までの通勤時間の短さや便利さや市内に東京ディズニーリゾートが所在することなど、埋立地を中心に計画的に整えられた住環境の良さが注目されておりマンション建設が相次いでいます。
新町地区のマリナイースト地区の地権者は都市再生機構(旧都市基盤整備公団)などであり、開発計画に基づいた開発が進められておあり、そのため道路が広く公園が多いことから緑が豊かです。

浦安市の行政事情(浦安市ホームページへ)
| 年間行事 |
|
|
|---|---|---|
| ごみ | 家庭ごみ回収 | 無料(指定ごみ袋代別) |
| 資源ごみ回収奨励制度 | ○ | |
| 育児・出産 | 妊娠・出産に関する助成金 | ○ |
| 子ども医療費助成 | 高校3年生まで(18歳到達後最初の3月31日まで) | |
| 児童手当 | 高校3年生まで(18歳到達後最初の3月31日まで) | |
| 保育所待機児童数 | 0人 ※令和6年4月1日現在 | |
| 私立幼稚園入園料・保育用補助金 | ○ ※私立幼稚園利用料無償(上限あり) |
|
| 学童クラブ対象学年 平日・土曜実施時間 | 小学校1年生から6年生まで。 平日(授業のある日)午後7時30分まで。土曜日・長期の休み午前7時30分(午前8時)から午後7時30分まで。 |
|
| 教育資金金融/奨学金制度 | ○ | |
ネットで来店予約できる日程
お気軽にお問い合わせください
株式会社 アイ・ユニットコーポレーション
[営業時間]9:00〜19:30



