- 新築
新築市川市欠真間1丁目 新築戸建
| 販売価格 | 所在地/交通 | 土地面積/建物面積 | 間取 |
|---|---|---|---|
| 成約御礼 | 市川市欠真間1丁目 東京メトロ東西線南行徳駅 徒歩16分 |
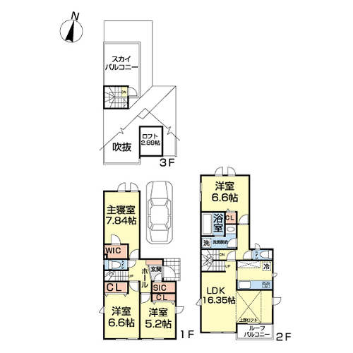
100.08m²/ 104.31m² | 4LDK |
ネットで来店予約できる日程
物件の担当者のおすすめポイント
開放感のあるスカイバルコニーが魅力の分譲住宅です!
南向きにつき日当たり良好!お日様の日差しがサンサンです。対面キッチンからは広々16帖のLDKが見渡せます。リビングイン階段は自然と家族が集まり絆が深まりますね(*^^*)
都心へのアクセス良好な東西線「南行徳」駅徒歩圏内!小学校も近いのでお子様の通学も安心ですね!お庭スペースもあるのでガーデニングも楽しめますよ♪WIC完備でお洋服好きの奥様にも喜ばれます。☆お客様が満足できる物件が見つかるまで全力でサポートさせて頂きます☆(^^♪
住宅ローンのご相談も承ります
月々のお支払いは0円になります
※返済金額はあくまでも目安の数値となります。詳細は弊社までお問い合わせ下さい。
※住宅購入では、物件資金とは別に諸経費が必要です。(火災保険、税金、ローン費用等)
物件概要
| 価格 | 成約御礼 | 月々の返済例 | |
|---|---|---|---|
| 物件名 | 市川市欠真間1丁目 新築戸建 | ||
| 所在 | 市川市欠真間1丁目 | ||
| 交通 | 東京メトロ東西線「南行徳」駅徒歩16分 | ||
| 総戸数 | 全3戸 | 販売戸数 | 1戸 |
| 物件番号 | 107838802001 | 物件種別 | 新築一戸建て |
| 土地面積 |
公簿 100.08m² |
建物面積 | 104.31m² |
| 間取り | 4LDK | 建物構造 | 木造2階建て(地下0階) |
| 築年月 | 2019年7月築 | 間取り詳細 | |
| 現況 | 完成済 | 引渡時期 | |
| 土地権利 | 所有権 | 借地料 | |
| 私道面積 | セットバック面積 | ||
| 都市計画 | 市街化区域 | 地目 | 宅地 |
| 用途地域1 | 第一種住居地域 | 用途地域2 | |
| 建ぺい率1/容積率1 | 60%/200% | 建ぺい率2/容積率2 | -/- |
| 建築確認番号 | 第H30SHC127835 | 開発許可番号 | |
| 駐車場 | 1台 | 取引態様 | |
| 不適合接道 | 接道状況 | 一方 | |
| 町会費 | その他費用 | ||
| 小学校区 | 中学校区 | ||
| 接道詳細 | 北西7.1m公道に5.94m接道 | ||
| 設備 | 東京電力 | ||
| 法令上の制限 | |||
| 備考 |
国土法届出:不要 駐車場 車庫:カースペース |
||
| こだわり項目 |
前道6m以上/建物30坪以上/成約御礼/整形地/区画整理地内/浴室に窓/陽当り良好/南向き/完成物件/駐車スペース有/コンビニ徒歩5分以内/小学校徒歩10分以内/保育園・幼稚園徒歩10分以内/収納充実/全居室収納/ウォークインクローゼット/リビング階段/LDK15畳以上/ロフト/南面バルコニー/コンロ3口以上/カウンターキッチン/対面式キッチン/システムキッチン |
||
ネットで来店予約できる日程
近くにもこれだけ物件があります。
| 種別を指定する |
|
|
|---|---|---|
千葉県市川市の街情報
市川市は千葉県北西部にある人口約47万人の市です。
千葉市、船橋市、松戸市に次いで千葉県では人口第4位。
江戸川および旧江戸川をはさんで東京都の隣、都心から20km圏内に位置し、首都圏のベッドタウンとして発展しています。
南部は住宅地としてひらけているが、北部の傾斜地等には豊かな自然が斜面林などとして、いまだ残っています。
市北部の市川、真間、新田、平田、菅野、八幡などは市の木であるクロマツの繁った住宅街の存在や、歴史のある町で古刹が多いこと等から千葉の鎌倉と呼ばれることもあります。

市川市の行政事情(市川市ホームページへ)
| 年間行事 |
|
|
|---|---|---|
| ごみ | 家庭ごみ回収 | 無料(指定ごみ袋代別) |
| 資源ごみ回収奨励制度 | ○ | |
| 育児・出産 | 妊娠・出産に関する助成金 | ○ |
| 子ども医療費助成 | 高校生3年生まで(18歳に達する日以後の最初の3月31日) | |
| 児童手当 | 中学校卒業まで | |
| 保育所待機児童数 | 0人※2024年4月現在 | |
| 私立幼稚園入園料・保育用補助金 | ○ | |
| 学童クラブ対象学年 平日・土曜実施時間 | 小学校1年生から6年生まで。 平日は午後6時30分まで。土曜日・夏休みなどは午前8時から午後6時30分まで。 |
|
| 教育資金金融/奨学金制度 | ○ | |
ネットで来店予約できる日程
お気軽にお問い合わせください
株式会社 アイ・ユニットコーポレーション
[営業時間]9:00〜19:30



